[Image Photo]
THE
PLAN
間取り
すくすく、のびのび。
住まいの中でも
オトナとコドモが一緒になって
すくすく育ち、好きを楽しむ。
暮らし方に応えてくれる、
遊びゴコロもゆとりもいっぱい溢れる
多彩なプランをご用意しました。
FAMILY LIBERTY
ファミリーリバティ
全76タイプのバリエーションで
好きなライフスタイルにフィット。
団らんを育む、プライベートな時間を楽しむ、趣味に打ち込む。暮らし方はそれぞれだから、ご家族の「好き」に応える多彩なプランをご用意しました。住むほどにココロとカラダにフィットする、そんな心地よい住まいです。
年々、縮小傾向にある今
専有面積70m²超中心※のゆとりの住まいを。
年々上昇を続ける新築分譲マンションの販売価格。
その影響を受けて平均専有面積も縮小傾向が続いています。
こんな今こそ「メイツ府中中河原」は、お住まいの方々にゆとりある暮らしを実感していただくことを考え、
専有面積70m²超(※)のプランを中心として様々なプランバリエーションをご用意いたしました。
※223戸中159戸
対象期間:発売が(2013年1月~2024年9月15日までのMRC調査・捕捉に基づく分譲マンションデータの範囲内)/データ資料:MRC・2024年10月号作成2024.10.24 (有)エム・アール・シー※MRC入力ベースで発売が2013年1月以降の物件のみ※表示数値は本調査段階におけるMRC補足・入力済み平均値
※70m²の販売価格推移東京カンテイプレスリリース新築マンション年収倍率(2018年9月25日・2019年12月4日・2021年10月28日・2022年10月31日・2023年10月31日・2024年10月31日付)より参照
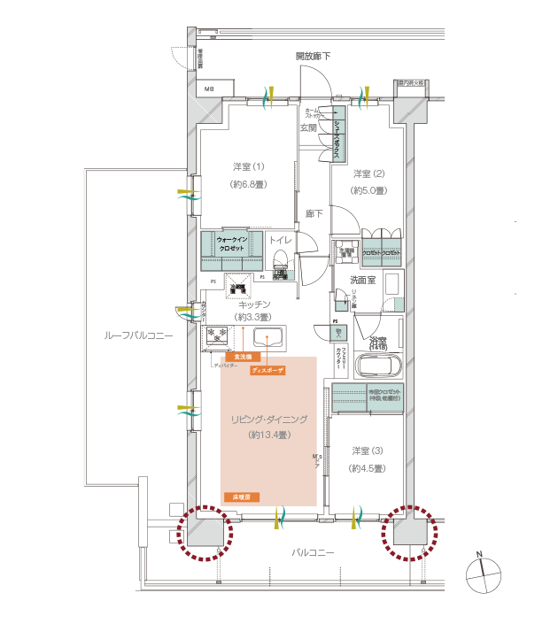
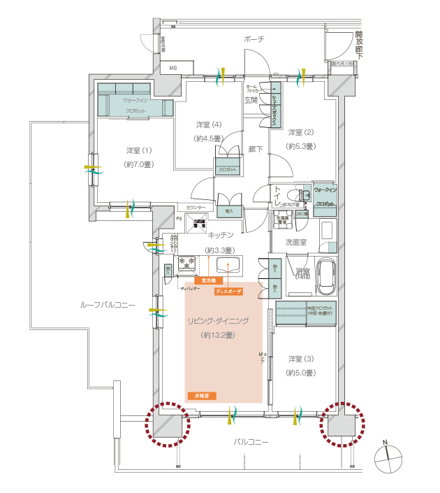
■2つのウォークインクロゼットや納戸など大型収納が充実。
■南面のリビング・ダイニングと洋室(3)は一体利用が可能。

N=納戸 WIC=ウォークインクロゼット
床暖房
収納
通風
採光
アウトフレーム
※掲載の図面は計画段階のものであり、変更となる場合がございます。予めご了承ください。
住戸プラン
ROOMPLAN
1天井高は約2.55m
概念図
約2.55mの天井高を確保して、平面の広がりだけでなくタテ方向の広がりもアップ。空間全体の開放感が高まります。
2ゆとりのバルコニー
バルコニーの奥行きは約1.9m。カフェテーブルやチェアなどを置けばアウトドアリビングとしても利用できます。(※一部タイプは1.85m)
3梁の出ない内蔵梁工法
概念図
戸境壁に梁を内蔵することで部屋をすっきりさせました。背の高い家具も配置でき、コーディネートしやすくなります。
4アウトフレーム設計
概念図
部屋に柱型がでないアウトフレーム設計を採用。コーナーがすっきりして家具のレイアウトもしやすくなります。

名鉄都市開発のオリジナル連動引戸
「M’sドア」をリビングに採用。


リビングと洋室をひとつの大空間にして開放感をさらに満喫したり、引戸を閉めて個室にしたり。リビング横に採用した可変式3枚引戸「M‘sドア」で、家族の成長に合わせた自由なアレンジが可能です。 (※一部タイプ除く)
M’sドアイメージ図(B3タイプ)

洗面室にはユーティリティ空間
「ユーディ」を採用。



洗面室には「衣類等の収納」、「洗濯にまつわる作業」、「身支度」などを快適に使い分けることができる多機能スペース「ユーディ」を採用。ライフスタイルや家族ひとりひとりのニーズに応える新発想空間です。


